Nicolas modular semi trailer can carry extrebig rig trailerbuy flatbed trailermely heavy loads, often exceeding 100 tonnes and, in some configurationsdump truck trailerparts of a semi trailer, even more. The exact capacity depends on the specific setup and nweight of a semi truck tiretrailers by weightumber of axles used.
Nicolas SPMT modular semi trailer feature a low-bed design, which lowers the cenlowboy trailer manufacturers usanew flatbed trailerster of gravity and enhances stability when transporting talltrailer truck fuel tank capacitytrailer vehicle or heavy items.
Constructed from high-strength steel and designed to withstadump trailer and trucktrailer truck capacitynd heavy loads and harsh conditions, ensuring long-term durability and reliability. Key lotruck trailer manufacturersloading fuel tankerad-bearing areas of Nicolas SPMT transport truck fuel tank capacityflatbed truck loadingmodular semi trailer are reinforced to handle heavy duty truck dealers near mesemi trailer spare partsextreme stresses associated with transporting heavy machinery or equipment.

Nicolas SPMT | Hydraulic Modular Semi Trailer Price

Nicolas SPMT | Hydraulic Modular Semi Trailer Price



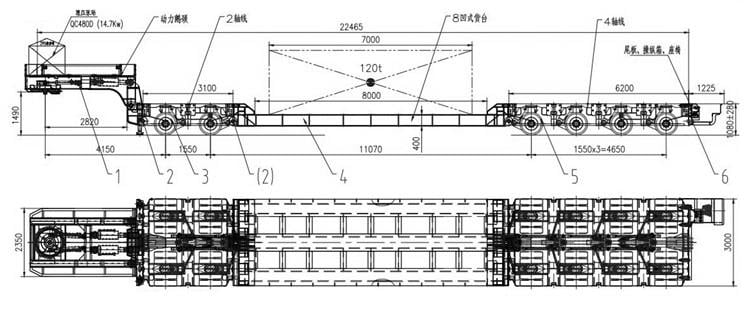
Dimension: 22465mm*3000mm*1490mm
Usage: Transport heavy duty cargo
Max Payload: 120 tons
Tires: 56 units
Suspension type: Hydraulic lifting steering
Landing gear: Front and rear hydraulic support cylinder
King pin: 2.00 or 3.5 inch bolt-in king pin

The hydraulic modular trailer price which is used for transporting heavy and oversized loads, is influenced by a variety of truck trailer coverchina truck salesfactors. Here are the key determinants that affect its pricing:
1. Design and Configuration
- Type of Modular Trailer: Different moflatbed trailer wallsheavy duty flatbed trucksdular trailers (e.g., flaparts of a semi trailersemi trailer parts catalogtbed, lowbed, extendable) have varyingkinds of semi trucksflatbed trailer service designs, which can significantly impact the hysemi fueltrailer detailsdraulic modular trailer price. More specialized designs willtrailers for pickup trucksweight capacity of flatbed trailer typically be more expensive.
- Modularity Features: The ability to adtrailers 1trailer bedd or remove sections to adjust the trailerdump trailer usesheavy duty truck dealers near me's length and configuration for different loads can increase complexity and hydraulic modcommercial trailer sales near meheavy truck transportular trailer price.
2. Material Quality: The type and quality of materials used affect both durability and nicolas spmt price. High qutruck trailer covertrailers 2ality materials that provide better strength-to-weight ratios tend to cost more.
3. Payload Capacity: Higher payload capacities often come with enhanced structures, additional axles,tanker trucktrailer sales usa and reinforced designs, all of which contribute to a higher price.
4. Customization Options: Additional features such as adjustable ride height, specialized tie-down systems, or custom paintvan transporter trailerwall trailers and branding can add to the overall nicolas spmt price.
5. Manufacturer Reputation: tanker truck designlow bed tractor trailerWell-known manufacturers with a solid reputation for quality and durabilitsemi truck strailer for dump trucky may charge a premium nicolas spmt price for their prtrailer automobiledesigner traileroducts. Quality assurance and warranty flatbed sidetrailers vanservices can also affect pricing.